서울시, 청년취업사관학교 7호 캠퍼스 개관
동작구에서 정보 기술(IT) 기반 서비스 기획자 양성
- 디지털전환 특화캠퍼스로 운영, 문과생(IT 비전공자) 맞춤 실무교육으로 직무전환 지원
- 1기 교육생(60명), 실습 프로젝트~포트폴리오 작성까지 집중교육… 종합… 취‧창업지원
- IT 비전공자 과정 4명 중 3명 취‧창업성공…’ 25년까지‧창업성공…’25년까지 25개 자치구에 캠퍼스 조성추진

# 마케터로 취업하고 싶지만 전공자도 아니고, 나이도 많은 편이었던 A 씨는 고민 끝에 청년취업사관학교의 문을 두드렸다. 마케팅 전반에 대한 이론 교육을 시작으로 디자인 툴을 활용한 실습 프로젝트 진행, 포트폴리오 제작부터 모의면접까지 3개월 간의 빡빡한 일정을 소화하자 현업 2년 차 마케터 정도의 스킬과 같은 꿈을 향해 나아가는 소중한 동료, 취업 성공의 경험을 얻을 수 있었다.
(청년취업사관학교 금천캠퍼스 ‘경력 있는 신입 마케터 되는 방법, 마케팅 슈퍼 Z’ 과정 참여자)
# 개발자로 커리어를 시작한 B 씨는 UX 분야에 흥미가 생겨 청년취업사관학교에 지원했다. UI/UX 기본지식부터 시나리오 기획, 웹 포트폴리오 구축까지 심도 있는 교육과정을 통해 기존에 갖추고 있던 개발역량에 더 나은 UI/UX를 제공할 수 있는 능력까지 갖춘 융합 인재로 성장할 수 있었다.
(청년취업사관학교 영등포캠퍼스 ‘웹&앱 UXUI 스페셜리스트 데뷔’ 과정 참여자)
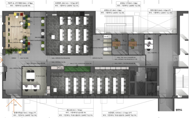
□ 서울시 청년 디지털 인재 양성기관 ‘청년취업사관학교’ 7번째 캠퍼스가 동작구(스페이스살림 2층)에 12월 28일(수) 개관합니다.
청년취업사관학교에서는 청년 구직자들에게 소프트웨어(SW) 개발 및 디지털전환(DT: Digital Transformation) 분야 등 디지털 신기술 분야 실무교육부터 취‧취‧창업 연계까지 전 과정을 지원하고 있습니다.
○ ‘청년취업사관학교’는 청년들에게는 양질의 실무교육과 일자리를, 인력 수급에 어려움을 겪고 있는 기업에는 디지털 분야 전문인력을 제공해 미스매칭을 해소하기 위해 도입한 오세훈 시장의 대표 청년 일자리 정책입니다.
□ 이번에 개관하는 동작 캠퍼스는 서울시의 7번째 청년취업사관학교입니다. 마포, 강서 캠퍼스에 이어 디지털전환(DT) 과정 중심의 특화형 캠퍼스로 운영된다. 좁은 취업문으로 고통받는 문과 졸업생(IT 비전공자)들의 경쟁력 강화를 위한 맞춤 프로그램으로 운영됩니다.
○ 교육은 서비스 기획자 양성을 목표로 ‘현직자에게 배우는 정보 기술(IT) 서비스 기획자 취업 캠프(32명)’ 및 ‘데이터 기반 서비스 기획 스쿨(28명)’ 2개 과정으로 운영됩니다.
○ ‘데이터 기반 서비스 기획 스쿨’은 현재 교육생을 모집 중으로, 참여를 원할 경우 ’23년 1월 15일(일)까지 누리집(sesac.seoul.kr)을 통해 신청할 수 있습니다.
| 교육 과정명 | 운영기관 | 교육생 | 교육일정 | 교육시간 | 비고 |
| 유니콘 기업 현직자에게 배우는 IT 서비스 기획자 취업 캠프 |
러닝 스푼즈 |
32명 | ’22.12.26~ ’23.05.01 | 312시간 | - |
| UI/UX부터 실무 프로젝트까지, 데이터 기반 서비스 기획 스쿨 | 에이블런 | 28명 | ’23.01.27~ ’23.03.27 |
320시간 | 모집중 (~’23.01.15) |
□ ‘청년취업사관학교’는 교육뿐만 아니라, 교육생들이 원하는 직무‧직군에 취업할 수 있도록 잡코디(직업 상담사)를 연계한 취업 지원을 제공하고 있습니다.
기업 발굴부터 취업상담, 채용 연계까지 ‘맞춤형 취업 설루션’을’ 제공해 영등포‧금천‧마포 캠퍼스의 교육과정을 수료하고 일자리 연계 지원을 받은 716명 중 74%인 529명이 취업에 성공했습니다.

□ 특히, 디지털전환(DT) 과정은 비전공자의 직무 전환부터 전직까지 전 과정을 지원한 결과, 총 179명 중에서 75%인 134명이 취업에 성공했다. 4명 중 3명꼴로 취‧창업에‧ 성공한 셈입니다.
○ 금천 캠퍼스의 디지털전환과정(’ 21.12~’ 22.3)을(’21.12~’22.3) 수료하고 일자리 연계를 지원받은 94명 중 74명이 취‧창업(78.7%)에 성공했습니다.
○ 마포 캠퍼스의 디지털전환과정(’ 22.4~’ 22.7)을(’22.4~’22.7) 수료하고 일자리 연계를 지원받은 85명 중 60명이 취‧창업‧창업(70.6%)에 성공했습니다.

□ 동작 캠퍼스의 위치적 강점도 최대한 활용합니다. 창업지원 공간 ‘스페이스 살림’ 2층에 위치한 만큼, 스타트업과의 취‧창업 연계의 시너지 효과도 기대됩니다.. 입주기업과의 교류를 통하여 스타트업 창업의 전 과정을 간접 체험하거나, 교육 과정에서 수행한 프로젝트를 창업으로까지 발전시킬 수도 있습니다. 특히, 향후 조성될 기술창업 전문 지원기관 ‘서울창업센터 동작’과의 연계를 통한 창업지원이 기대됩니다.
○ 청년취업사관학교는 법률, 회계 등 각 분야 전문가로 자문단을 구성하여 교육(수료) 생에(수료) 대한 창업 자문을 제공하는 등 취업뿐만 아니라 창업 준비까지 지원하고 있습니다.
□ 서울시 일자리정책과는 “동작 캠퍼스는 정보 기술(IT) 분야 비전공자들을 위한 디지털전환(DT) 과정 교육에 집중해, 직무 선택부터 취업‧이직까지 모든 과정에서 고민이 많을 문과생들에게 답을 주는 교육기관이 되고자 한다.”며, “2025년까지 25개 전 자치구에 청년취업사관학교를 조성해 서울시 청년 구직자들이 마음만 먹으면 가까운 캠퍼스를 찾아 양질의 실무교육을 받고, 취업에 대한 자신감과 전문성을 얻어갈 수 있도록 노력을 아끼지 않겠다.”라고.” 밝혔습니다.
'News' 카테고리의 다른 글
| 겨울방학엔 서울의 공원에서 배우고 즐겨요 / 59개 여가프로그램 가득! (0) | 2022.12.28 |
|---|---|
| 멸종위기 야생생물 1급 천연기념물 수달 서식 확인 (0) | 2022.12.28 |
| 월드컵공원, 8m ‘억새 토끼’ 문화비축기지, '달토끼' 전시 및 소망 이벤트 운영 (0) | 2022.12.28 |
| ‘제야의 종’ 타종행사 축구선수 조규성외 파워 유튜버 22명 참여 대중교통 새벽2시까지 연장 (0) | 2022.12.28 |
| 2023 서울대공원 점프 프로젝트 토끼 조형 작품 23점 전시, 이벤트 진행 (0) | 2022.12.27 |
댓글